Uwaga – strona w przebudowie! Przepraszamy za wszelkie niedoskonałości.

Separatory tłuszczów roślinnych i zwierzęcych
  • W przypadku rzeczywistego zagłębienia kanalizacji większego od wartości “A” należy nadbudować separator nadstawkami regulacyjnymi
  • Wszystkie urządzenia w wykonaniu najazdowym z włazami Ø600 w klasach obciążenia C250 lub D400.

Separator tłuszczu STC

Rodzaj separatora:
Separatory tłuszczów roślinnych i zwierzęcych
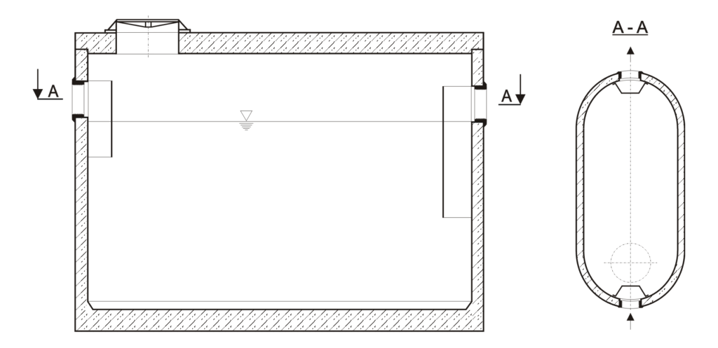
Rodzaj zbiornika:
Zbiorniki o podstawie okrągłej i owalnej

Parametry techiczne

STC NS
1/200
2/300*
2/700
4/600*
4/1200
7/800*
7/1700
10/2000
15/4000
20/4000
25/6000
Wielkość NS
1
2
2
4
4
7
7
10
15
20
25

STC NS
25/6000 Ow
Wielkość NS
25

Przykładowy sposób oznaczania separatorów STC

STC – typoszereg
NS 1 – wielkość nominalna
/200 – pojemność osadnika

Zobacz również inne urządzenia