Uwaga – strona w przebudowie! Przepraszamy za wszelkie niedoskonałości.

Przepompownie ścieków ECOPOMP

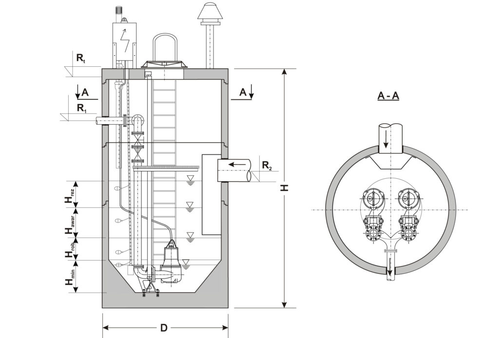
Przepompownia ścieków ECOPOMP

Rodzaj separatora:
Przepompownie ścieków ECOPOMP
Rodzaj zbiornika:
Zbiornik o podstawie okrągłej

Parametry techiczne

Zobacz również inne urządzenia